マイページ
小説を探す
ネクスト
書籍化作品
KADOKAWA Group
ログイン
新規登録
(無料)
アスタリスク
@TheEldestReborn
2025年4月16日
に登録
ミステリー
フォロー
プロフィールを共有
ホーム
小説
1
近況ノート
1
ユーザーのフォロー
4
2025年9月29日 16:51
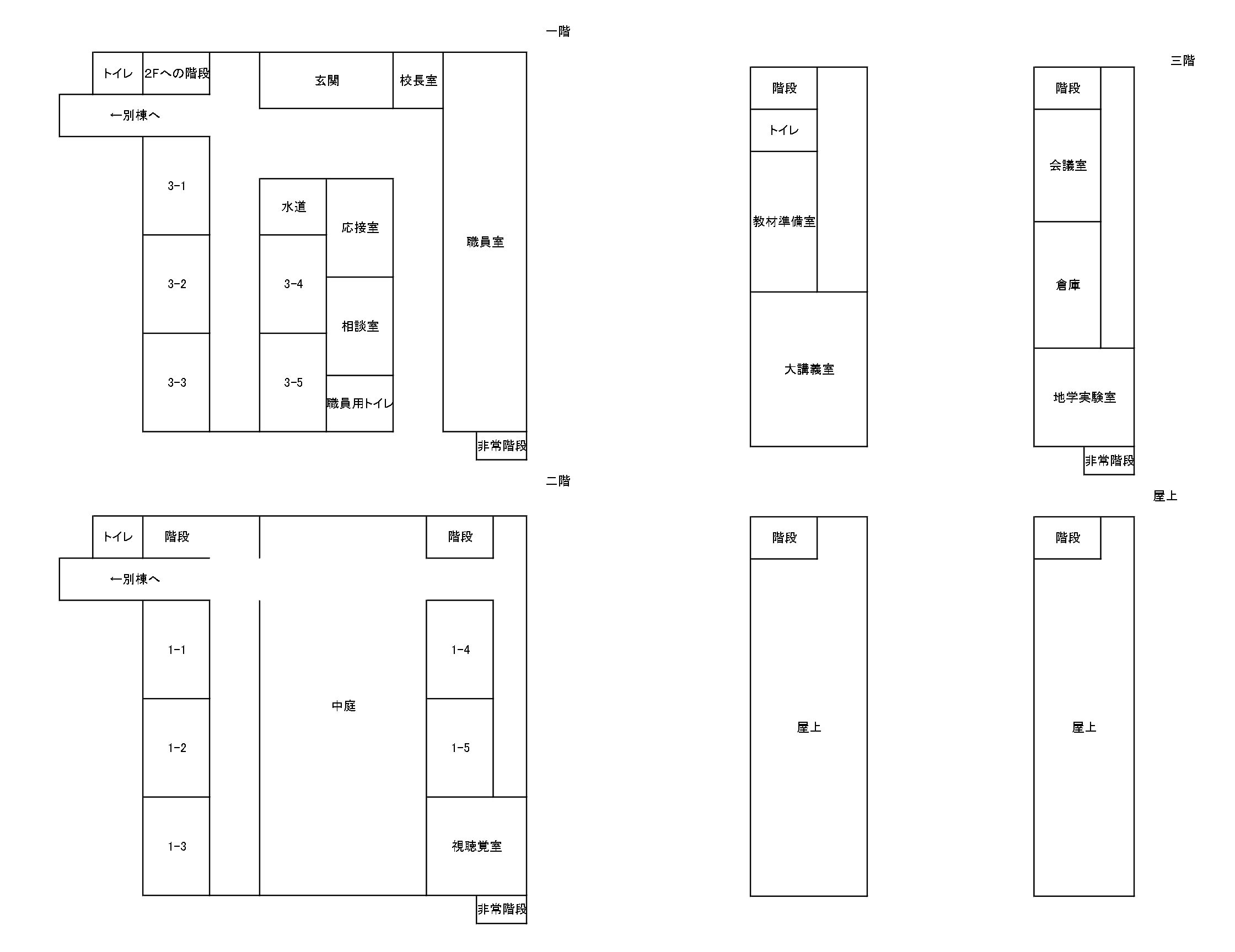
濱長北高等学校校舎図
探偵の再誕の舞台である、濱長北高校の校舎見取り図を下記に提示します。
アスタリスク
X
Facebook
はてなブックマーク
コメント
コメントの投稿には
ユーザー登録
(無料)
が必要です。もしくは、
ログイン
投稿する